Furniture And Millwork Drawings Services

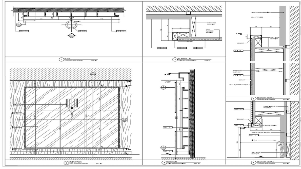
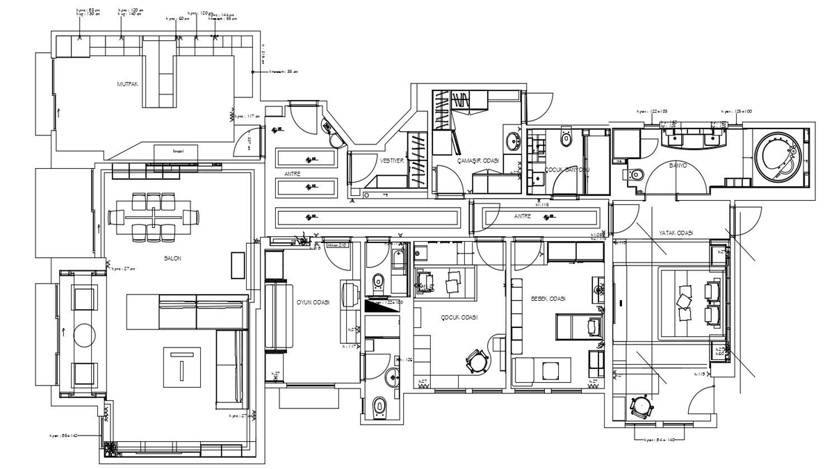
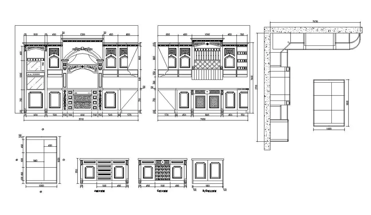
Ideas become real only when the drawings match the shop, the CNC, and the installer. With over 25 years of furniture CAD design services expertise, Cad Drafter produces shop drawings, cutlists, and CNC-ready nesting files that save time and wood. We detail species choices (Baltic birch plywood, hardwoods like oak or maple, MDF), specify hardware (Blum, Hettich), and show joinery and tolerances (typically to 0.5-1 mm) where finishes demand it. Deliverables include DWG, DXF for CNC, PDF shop sets, and 3D visualizations (OBJ/STEP) so clients preview assemblies before cutting. Turnaround is fast! Many standard cabinetry jobs finish in one to two days. All in all, every service is practical, accurate and ready for the mill.